Besucherpavillon an der Rheinpromenade Plittersdorf („Plittersdorfer Welle“)

Plittersdorf 2
Plitterdorf
Plitterdorf
Plitterdorf
Plitterdorf
Plitterdorf
Plitterdorf
Plittersdorf 7
Plittersdorf 4
Plittersdorf 3
Plittersdorf 5
Plittersdorf 6
Plittersdorf 2 Plitterdorf Plitterdorf Plitterdorf Plitterdorf Plitterdorf Plitterdorf Plittersdorf 7 Plittersdorf 4 Plittersdorf 3 Plittersdorf 5 Plittersdorf 6

Besucherpavillon an der Rheinpromenade Plittersdorf („Plittersdorfer Welle“)

Realisiert

Adresse: Fährstraße in Plittersdorf am Rhein
Auftraggeber: Stadt Raststatt, Fachbereich Stadt- und Grünplanung
Ansprechpartnerin: Frau Fulda tel.: 07222/ 972-4103

Bearbeiter: Mathias Christoffel
Mitarbeit: Emmanuel Ikeme, Jakob Suranovsky
Gesamtkonzept Fährwiese: SNOW Landschaftsarchitekten
Tragwerksplanung: Ingenieurgruppe Bauen, Karlsruhe
Planungs- und Bauzeit: 2021-2023

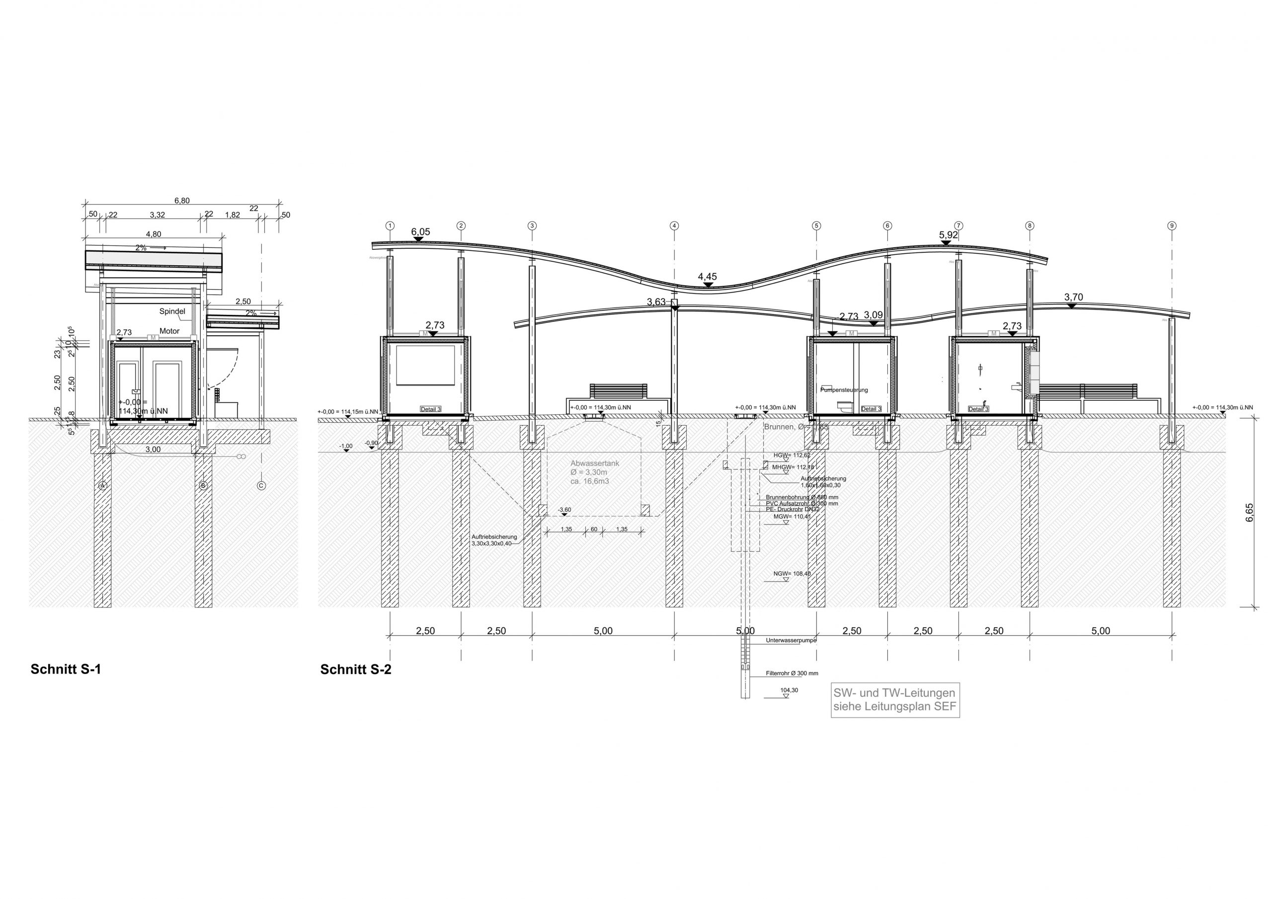
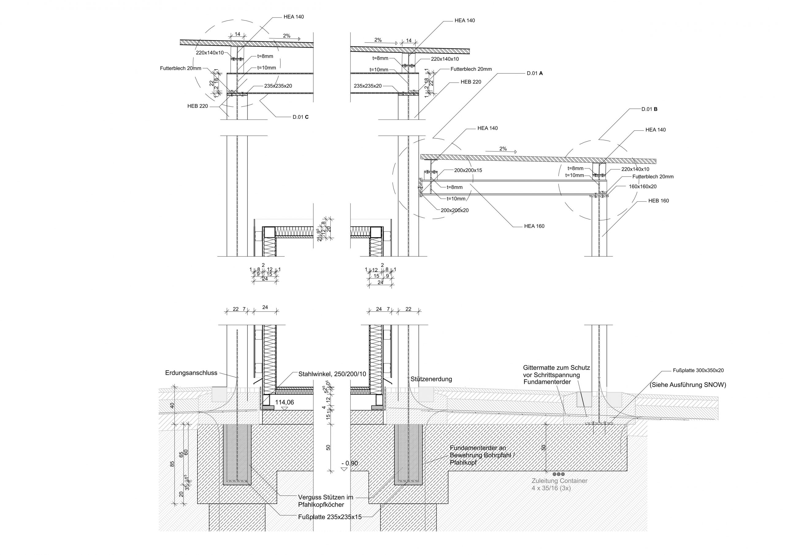
Eine sehr spezielle Bauaufgabe: Zu planen war ein Besucherpavillon für die neu gestaltete Fährwiese am Fähranleger in Plittersdorf. Die Rahmenbedingungen waren außergewöhnlich: Abgesehen davon, dass weder Wasser- noch Abwasseranschluss vorhanden sind, wird die Fährwiese beim Rheinhochwasser regelmäßig überschwemmt. Die Stellung des Daches zwischen Fährwiese und Parkplatzzufahrt trennt den Verkehrsbereich von der ruhigen Aufenthaltsfläche und fungiert als Rückgrat des von SNOW Landschaftsarchitekten neu gestalteten Uferparks mit Rasenflächen, Picknicktischen und Aussichtsbänken am Rheinufer.

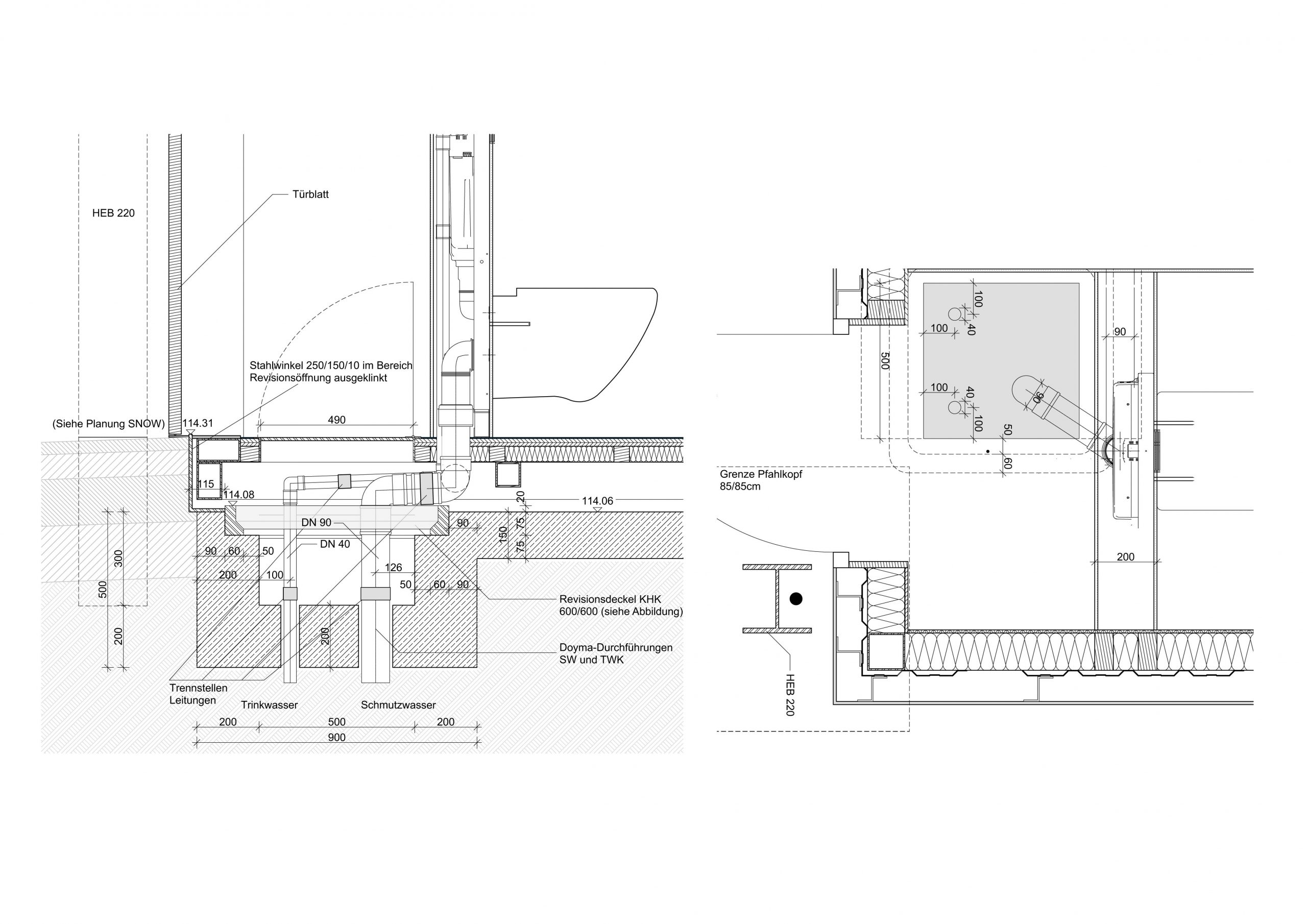
Das Dach des Besucherpavillons wurde als Stahlkonstruktion realisiert, dessen Stützen mit Bohrpfählen hochwassersicher verankert sind. Darunter sind drei Container mit WCs und einem kleinen Imbiss aufgestellt, die mit Spindelantrieben ähnlich Aufzugskabinen bis zu 1,50 m angehoben werden können, um dem durchströmenden Hochwasser auszuweichen. Die wellblechgedeckten ge-schwungenen Dachflächen haben dem Bauwerk sehr schnell den Spitznamen „Plittersdorfer Welle“ eingetragen.

Während das Trinkwasser aus einem neu gebohrten Brunnen bezogen wird, werden alle Abwässer in einem unterirdischen Tank gesammelt, der regelmäßig leergepumpt wird. Die Anschlussleitungen zu den Containern müssen vor dem Hochfahren getrennt und nach dem Ablassen der Container wieder dicht verbunden werden.