Neubau EFH Ludwigshafen
Adresse: Parkinsel, Ludwigshafen
Bauherr: privat
Planung und Projektleitung: Margrit Dekorsy-Wassmer, Rudolf Kleine BDA (in Kleine+Partner)
Planungs- und Bauzeit: 2012 – 2013
Neubau: BGF 320 m²
Fotos: Margrit Dekorsy-Wassmer
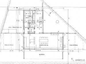
Um der Hochwassergefahr zu entgehen, wurde auf einen Keller verzichtet, was bei der knappen überbaubaren Grundfläche einen kompakten Grundriss erzwang. Um einer dennoch möglichen Überschwemmung zu begegnen, wurde im Erdgeschoß auf jegliche wasserempfindlichen Baustoffe wie schwimmender Estrich, Holzboden etc. verzichtet. Stattdessen gibt es Sichtbetonwände und einen geschliffenen Betonboden auf der betonkernaktivierten Bodenplatte. Beheizt wird mit Erdwärme aus Tiefenbohrungen über Fußbodenheizungen in allen drei Geschossen.
Um die geforderte Barrierefreiheit zu garantieren, gibt es nicht nur einen Aufzug, sondern die beiden Dachterrassen wurden mit 2 cm Vakuumdämmung isoliert, sodass der Übergang von Innen nach Außen absolut schwellenfrei ist.
Die alte, geschützte Eiche auf dem Grundstück erzwang einen L-förmigen Grundriss, dennoch verleiht das schwarze Sichtmauerwerk dem Haus einen kompakten monolithischen Charakter. Und da die Eiche die Bauzeit unbeschadet überstanden hat, erscheinen Haus und Baum als „immer schon dagewesene“ Einheit.