Neubau Mehrfamilienhaus Karlsruhe (Pfarrhaus)

Adresse: Reinhold Frank-Straße 56 a,
76133 Karlsruhe
Bauherr: Evangelische Kirchengemeinde Karlruhe
Ansprechpartner: Herr Bossert (Tel. 0721 / 167-0)
Projektleitung: Mathias Christoffel (in Werkgemeinschaft Karlsruhe)
Leistungsphasen: 5 – 9 HOAI
Planungs- und Bauzeit: 1991 – 1992
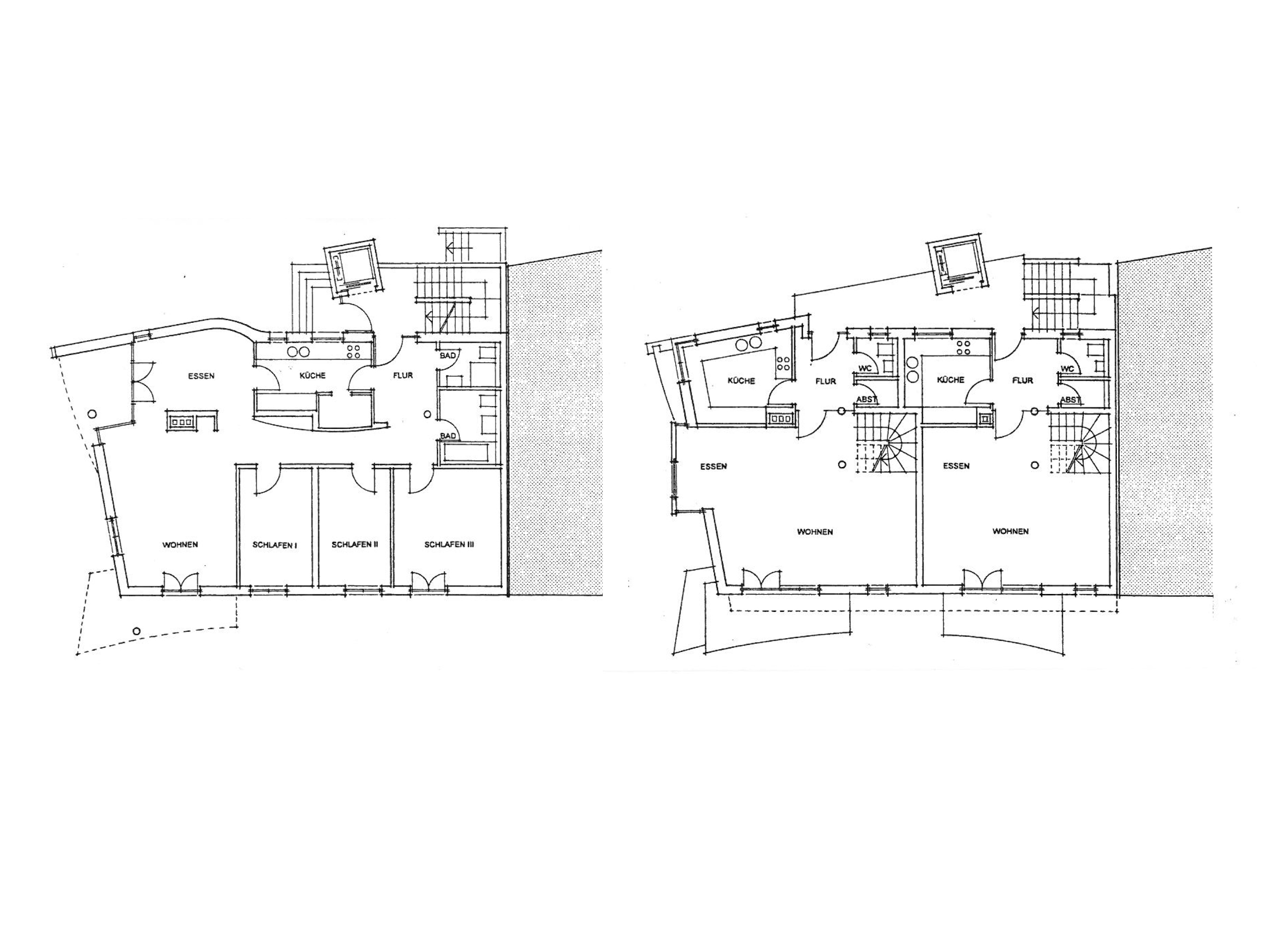
Neubau: WF 570 m² / BRI ca. 2740 m³
Fotos: Eberhard Kampmann, Mathias Christoffel

Das mehrgeschossige Wohnhaus mit vier Wohnungen gehört zu einer von der Werkgemeinschaft Karlsruhe geplanten Gebäudegruppe, die auch das Gemeindezentrum der Evangelischen Kirchengemeinde einschließt.
Das Pfarrhaus ist direkt angebaut an ein von Hermann Billing entworfenes Wohngebäude in der benachbarten Baischstraße. Die asymmetrische Dachneigung musste in Absprache mit dem Denkmalschutz übernommen werden.
Die Formensprache versucht eine Übersetzung der benachbarten Jugendstilarchitektur in eine zeitgemäße Formensprache.
Die zwei Geschosswohnungen und zwei Maisonettewohnungen sind hochwertig ausgestattet.