Nordstadtbahn Mannheim

Adresse: 14 Haltestellen entlang der Nordstadtbahn in Mannheim, Fußgängerbrücke und Lärmschutzwand
Bauherr: Rhein Neckar Verkehr GmbH, Mannheim
Ansprechpartner: Herr Buter / Frau Böttger (Tel. 0621 / 465-0)
Projektleitung: Mathias Christoffel (bis Entwurf in Werkgemeinschaft Karlsruhe, danach basicc)
Mitarbeit: Andreas Obenauer, Reinhard Singer, Tsvetozara Stoyanova, Sandra Zinkgraff, Sebastian Nitka
in Kooperation mit B. Ramthun, Lunalicht, Prof. F. Berger
Leistungsphasen: HOAI 1 – 6
Planungs- und Bauzeit: 2010 – 2015
Baukosten Haltestellenmobiliar: ca. € 2,5 Mio € netto

Beauftragt wurde die Neuentwicklung eines Sets für die Haltestellenmöblierung der Mannheimer Nordstadtbahn. Im Zuge der gestalterischen Betreuung der Neubaustrecke kam die Planung von Zugangsrampen für eine Fußgängerbrücke sowie die Gestaltung einer streckenbegleitenden Lärmschutzwand hinzu.

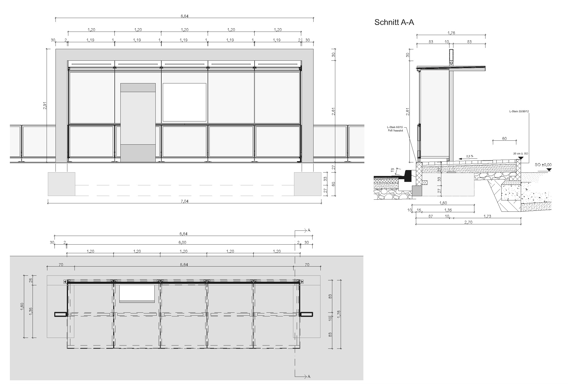
Das Haltestellenmobiliar basiert auf einem Tragrahmen aus Rechteckrohrprofilen, an den die Dächer für Fahrgastunterstand und Bike & Ride Dach gehängt sind. Einfache Spritzschutzwände und Geländer ergänzen den Set. Neu entworfene Leuchtenstelen markieren den Haltestellenbereich im Stadtraum.

Der Neubau von Zugangsrampen auf eine bestehende Fußgängerbrücke über DB-Gleise wurde zum eigenen Entwurfsthema: Fachwerkträgerartige Tragwände schaffen einen markanten neuen Ort im städtischen Unraum.

Eine Lärmschutzwand entlang der Waldstraße im Bereich der Gartenstadt verortet sich über Fensteröffnungen, die in bestehenden Baumachsen angeordnet sind. So zeigt sich von außen gesehen eine Bildergalerie gerahmter Baumstämme. Von der Gartenstadt aus ergeben sich punktuelle Ausblicke. Auf dieser Seite können die tiefen Rahmen auch als Sitzbänke genutzt werden.