Stadtbahnwerkstatt Saarbahn Saarbrücken
Adresse: Brebacher Landstraße, Saarbrücken – Brebach
Bauherr: Stadtbahn Saar GmbH
Ansprechpartner: Herr Irsch (Tel. 0681 / 587-3611)
Projektleitung Phase 1-4, Projektsteuerung ARGE: Mathias Christoffel (in Werkgemeinschaft Karlsruhe, ARGE mit TransportTechnologie Consult)
Leistungsphasen: HOAI 1 – 8
Planungs- und Bauzeit: 2006 – 2012
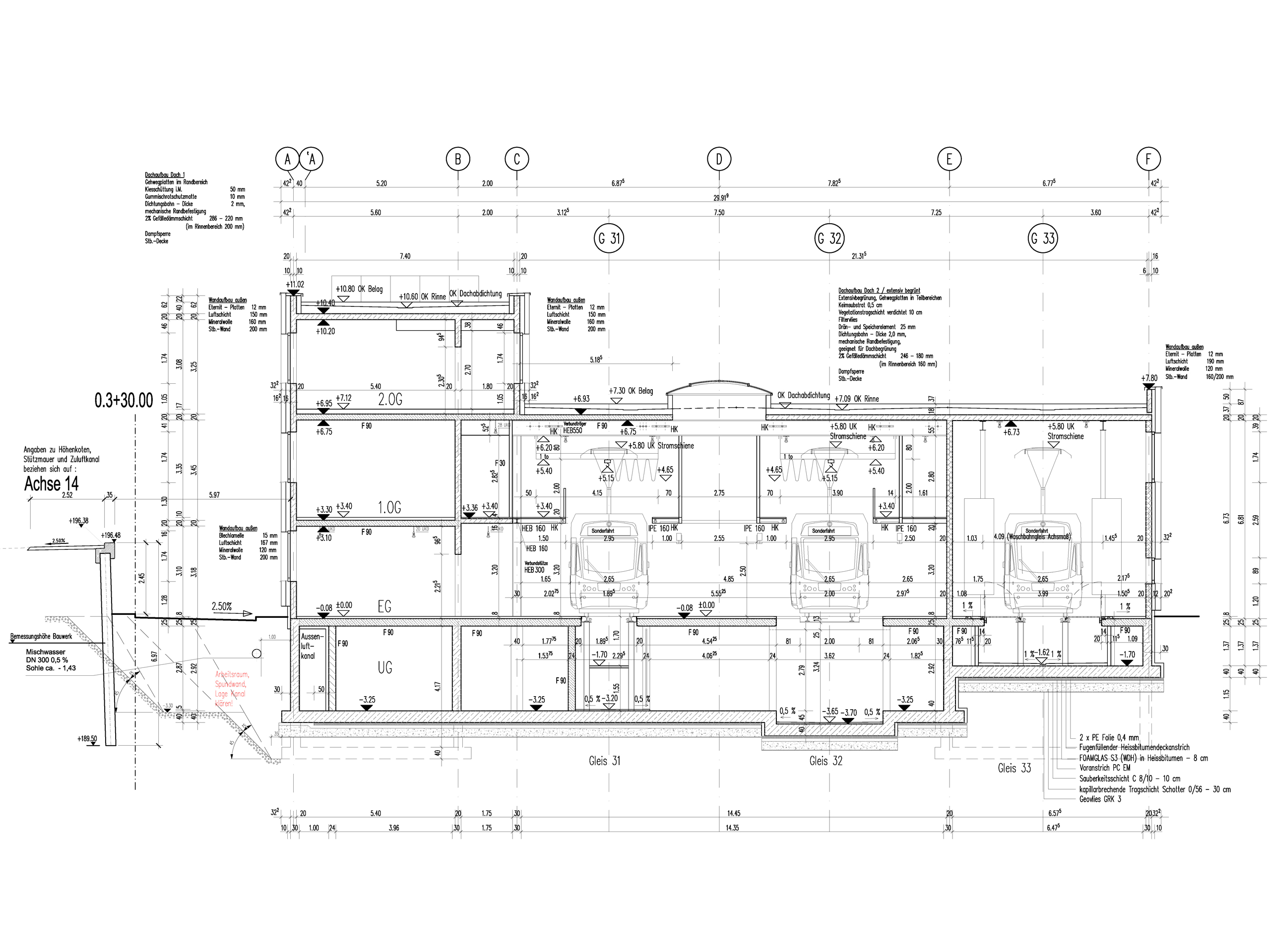
Neubau: BGF ca. 9.220 m² / BRI ca. 29.015 m³
Baukosten Gesamtprojekt: ca. € 10,0 Mio netto (KG 300, 400)
Im Jahr 2005 begannen Voruntersuchungen für die Sanierung einer DB-Lokhalle am Saarbrücker Hauptbahnhof, die bereits von der Saarbahn als Wartungshalle für ihre Straßenbahnen genutzt wurde. Die Sanierung wäre mit hohem Aufwand möglich gewesen.
Dann ergab sich ein Grundstückskauf von der DB am Bahnhof Brebach, wo schon seit Betriebsgründung die Zweisystemfahrzeuge der Saarbahn im Freien abgestellt sind. Dort wurde ein Werkstattneubau geplant.
Die mit einem Verwaltungstrakt kombinierte Werk-statthalle beherbergt sechs Arbeitsstände mit Gruben und Bühnen. Die Waschanlage ist in einem separaten Baukörper angegliedert. Die Werkstatt ist unter anderem mit einer Unterflurhebeanlage, einer mobilen Hebeanlage, vier Krananlagen und einer mobilen Radsatzdrehmaschine (Mobiturn) ausgestattet.
Der dreigeschossige Werkstatt,- Sozial- und Verwaltungstrakt riegelt die Werkstatthalle zur Brebacher Landstraße hin ab. Die markante dunkelgraue Eternitfassade wird durch Fensterbändern mit eingestreuten orangenen Blechpaneelen akzentuiert. Im Gegensatz dazu ist die Werkstatthalle mit einer Wellblechfassade umkleidet, die mit senkrechten Fensterschlitzen rhythmisiert wird.