Umbau Händlerzimmer EnBW

Adresse: Durlacher Allee, 76131 Karlsruhe
Bauherr: EnBW Grundstücks- und Gebäudemanagment GmbH & Co KG Karlsruhe
Ansprechpartner: Herr Fabian Spalthoff (Tel. 0721 / 63-15416)
Projektleitung: Mathias Christoffel (in Werkgemeinschaft Karlsruhe)
Leistungsphasen: HOAI 1 – 9
Planungs- und Bauzeit: 2008 – 2009
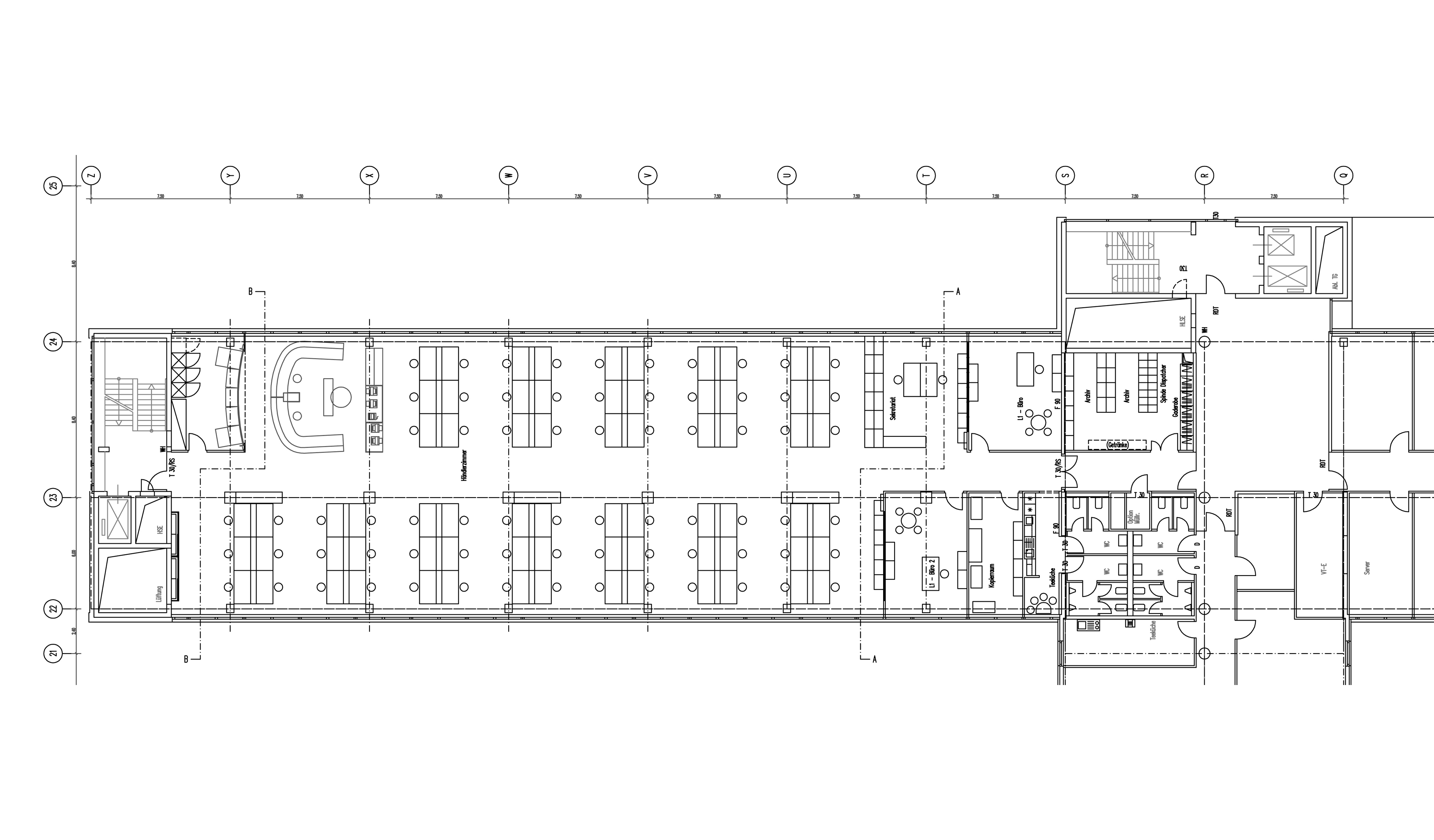
Umbau: BGF ca. 720 m² / BRI ca. 2.400 m³
Baukosten Gesamtprojekt: ca. € 2,2 Mio netto (KG 300, 400, 600)
Fotos: ,Mathias Christoffel

In der Konzernzentrale der ENBW an der Durlacher Allee wurden die Räume für die Abteilung Energiehandel (ETG) zu eng. Deshalb beschloss man, einen frei werdenden Trakt auszukernen und für die börsenartige Nutzung neu auszubauen.

Der fertige Raumausbau lässt kaum ahnen, welch hoher technischer Aufwand betrieben wurde, um die klimatischen Schwankungen an den Arbeitsplätzen eng einzugrenzen: Die 72 Händlerplätze sind als wassergekühlte Tische mit je sechs Bildschirmen ausgestattet, um die hohen Wärmelasten abzuführen. Zusätzlich wurden Teilflächen der abgehängten Decke als Kühldecken gebaut. Zuluft als Quellluft und Abluft-Schlitzschienen komplettieren das Klimapaket.

Auch die Anordnung von schallschluckenden Flächen an Decke und Stirnseiten war entwurfsbestimmend: Neben Schallschluckdecken und Akustikpaneelen wurden an den Stirnseiten Tieftonabsorber entwickelt, die in Kombination mit Verglasungen zu den Büros der Abteilungsleiter das Ambiente prägen.