Luftbild Montage
Wartungshalle Heilbronn-RAL1035-03b
Wartungshalle Heilbronn-RAL1035-01b
Wartungshalle Heilbronn
Wartungshalle Heilbronn
Wartungshalle Heilbronn
Wartungshalle Heilbronn
Luftbild Montage Wartungshalle Heilbronn-RAL1035-03b Wartungshalle Heilbronn-RAL1035-01b Wartungshalle Heilbronn Wartungshalle Heilbronn Wartungshalle Heilbronn Wartungshalle Heilbronn

Wartungshalle am Bahnhof Heilbronn

Adresse: Bahnhofsstraße, Heilbronn
Bauherr: Albtal-Verkehrs-Gesellschaft mbH, Karlsruhe
Ansprechpartner: Herr Höglmeier (Tel. 0721 / 6107-0)
Projektleitung: Mathias Christoffel, Margrit Dekorsy-
Wassmer
Mitarbeit: Sandra Zieger, Marcia-Viktoria Türk, Paul Dekorsy, Ralf Gudat
Leistungsphasen: HOAI 1 – 8
Planungs- und Bauzeit: 2016 – 2027
Baukosten Gesamtprojekt: ca. 13.000.000 € netto

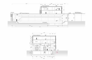
An der bestehenden Abstell- und Wendeanlage der AVG beim Bahnhof Heilbronn soll eine Wartungshalle mit Waschgleis gebaut werden, außerdem wird die Abstellanlage erweitert.

Wegen der nächtlichen Geräuschentwicklung der Stadtbahnfahrzeuge wird ein Großteil der Abstell-gleise im Hallenvorfeld eingehaust. Diese nach Norden offene Schallschutzüberdachung verbindet sich mit der Wartungshalle zu einem etwa 150 m langen Gesamtbaukörper.

Die großen Dachflächen werden extensiv begrünt und für die Aufstellung von PV-Modulen vorbereitet. Büro- und Sozialräume thronen in einem zweigeschossigen Kubus über der Wartungshalle.

Die lange Gebäudefront an der Bahnhofstraße trägt als Trapezblechfassade dem industriellen Charakter der Bahnwerkstatt Rechnung. Akzente setzen Fens-teröffnungen mit vorgesetzten Sonnenschutzklappen, deren Dichte von Ost nach West der inneren Nutzung (und der Fibonacci-Reihe) folgend zunimmt.