Werkstatt Schönbuchbahn Böblingen

Adresse: Bahnhof Böblingen
Bauherr: Zweckverband Schönbuchbahn
Ansprechpartner: Herr Springer (Tel. 07031 / 663-1887)
Projektleitung: Mathias Christoffel, Margrit Dekorsy-Wassmer (als Mitglieder der INGE Schönbuchbahn mit TTK und Signon)
Mitarbeit: Sandra Zieger, Torsten Neuberger, Sebastian Nitka, Reinhard Singer
Leistungsphasen: HOAI 1 – 9
Planungs- und Bauzeit: 2010 – 2019
Neubau: BGF ca. 34.240 m²
Baukosten Gesamtprojekt: ca. 14,2 Mio.€ netto (KG 200, 300, 400 und 600)

Als Teil eines Infrastrukturprojektes – Elektrifizierung und zweigleisiger Ausbau der Schönbuchbahn Böblingen nach Dettenhausen – entstand eine Werkstatthalle zur Wartung und Instandhaltung der Elektrofahrzeuge.

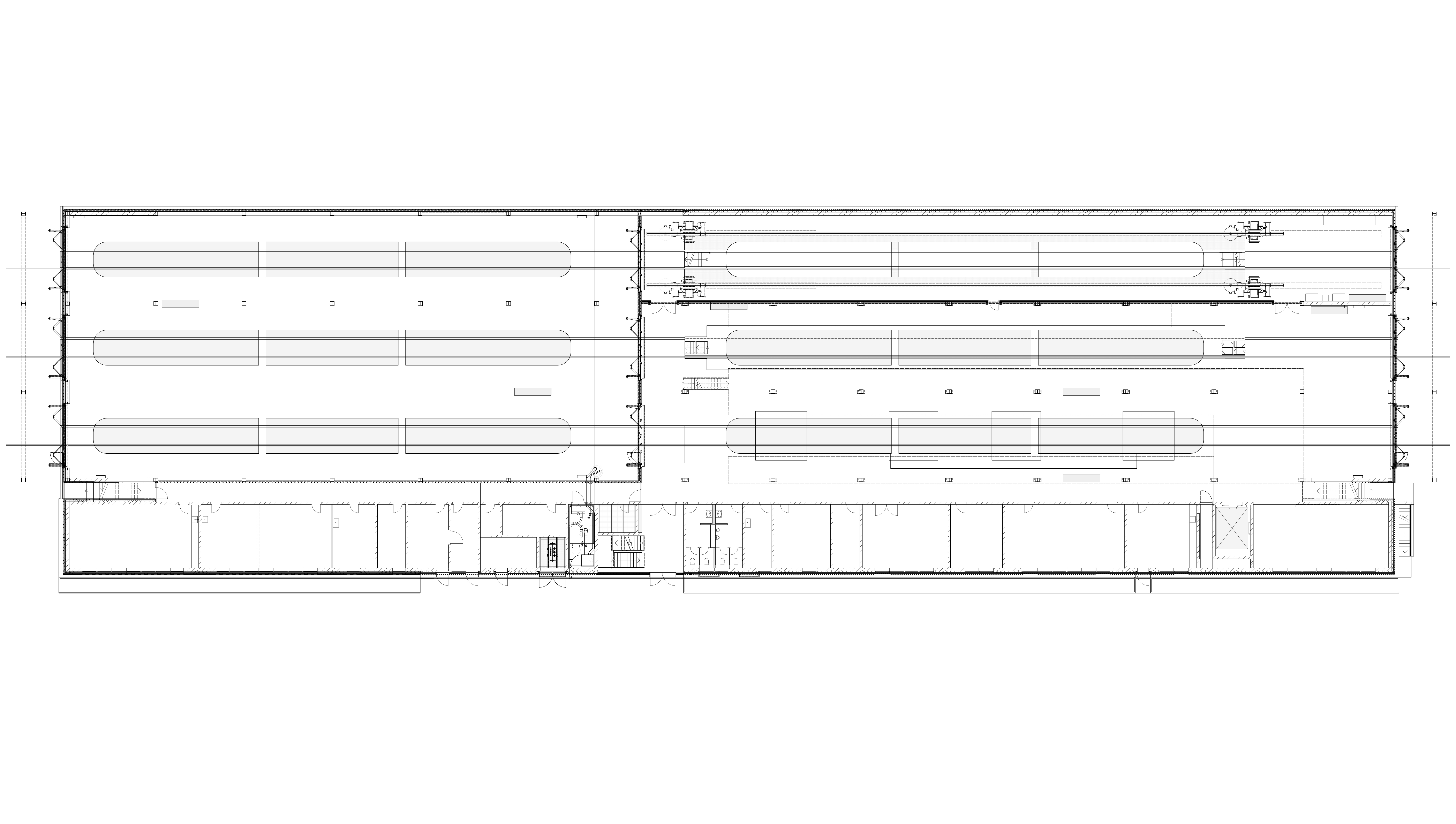
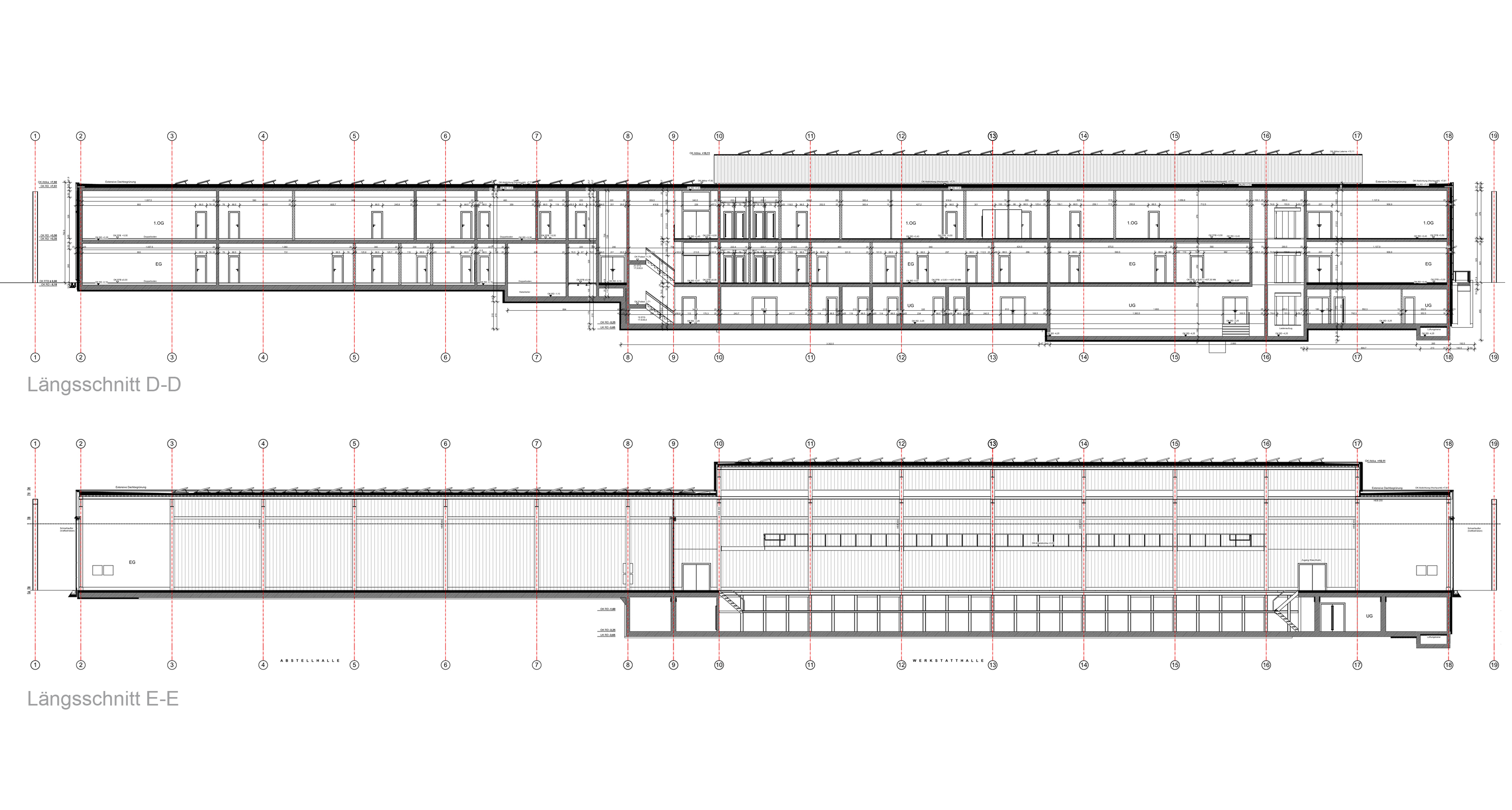
Die Halle enthält ein Waschgleis, zwei Wartungsgleise und drei Gleise zur Abstellung von Elektro-Schienenfahrzeugen. Daran straßenseitig angefügt ist ein zweigeschossiger Büro- und Sozialtrakt.

Die Stahlkonstruktion der Halle, kombiniert mit dem massiven Seitentrakt ist mit nur zwei Materialien verkleidet:

Gelochtes Trapezblech vor massiven gedämmten Wandabschnitten, als Sonnenschutz vor untergeordneten Fenstern durchlaufend. Wichtige Fenster haben passend gelochte Faltscherenläden als beweglichen Sonnenschutz. Dazu kommt Industriegussglas in verschiedenen Schichtaufbauten – einschalige Vorsatzschalen vor gedämmten Betonwänden, zweischalige Glasaußen – und Innenwände, dreischalige, transparent gedämmte Glasaußenwände für die Dachlaterne.

Im Inneren ist die Werkstatt rau, direkt und unverkleidet aus deutlich ablesbaren Baustoffen. Alle Einbauten und Konstruktionen sind hochwertig, robust und wartungsfrei. Auf Überflüssiges wie Verkleidungen, Verputz, Abdeck- und Fußleisten wurde bewusst verzichtet.

Auch die sichtbaren Komponenten für die technische Gebäudeausrüstung sind als wesentlicher Teil des Gesamtbildes sauber geplant und ausgeführt.

Die unterschiedlichen Grautöne von Sichtbeton, Glas und Stahl werden durch die kräftige rote Farbgebung der beweglichen Einbauten (Unterflurhebeanlage, Kran, Waschanlage, Aufzugportale, Besandung) akzentuiert.

Die Durchsichtigkeit der vielen Geländer, notwendigen Sicherheitsabsperrungen und Hallenabtrennungen wurde wo immer möglich beachtet und gewährleistet die Übersichtlichkeit des weitläufigen Arbeitsplatzes Werkstatt.

Die großzügigen Verglasungsflächen, auch die der Dachlaterne, bringen tagsüber viel Licht in die Werkstatt und an die Arbeitsplätze. Abends kehrt sich die Wirkung um und die hell erleuchtete Halle strahlt in das Gleisumfeld der Bahnhofszufahrt aus. Ein Drehgestelllager und ein Unterstelldach mit analog entwickelter Stahlkonstruktion und Verkleidung ergänzen die Halle zum Ensemble auf dem Betriebsgelände. Die vielen Beleuchtungs-, Signal- und Fahrleitungsmaste mit filigranen Auslegern setzen das Thema der aufgelösten Stahlkonstruktionen des Halleninneren im Außenbereich fort.